Auf dieser Seite erklären wir, wie wir Leitideen für eine Neukonzeption des Gebietes entwickelt haben, indem wir die unbefriedigende aktuelle Situation genauer untersuchten.
Kann das sein?
Man baut eine Kreuzung um.
Und gewinnt einen Stadtraum zurück?
Und wiedervereint einen zerrissenen Park?
Und ein Stadtteil erhält seine Mitte zurück?
Nur ein Planermärchen? Im Gegenteil!

Die Kreuzung Uhland / Blisse / Mecklenburgische
(Fotos M. Reich)


Todesmutig »werfen« sich Jogger ins Getümmel
(Fotos M. Reich)
Am Anfang der Idee stand die desolate Situation an der Kreuzung Uhland-/Blisse-/Mecklenburgische Straße Ein zerklüfteter Stadtraum, ohne Form und ohne Raumkanten.
Eine Kreuzung, die für Fußgänger und Jogger ein Alptraum ist.
Weniger wegen des Verkehrsaufkommens, sondern einfach deswegen, weil sie eine Blockade darstellt und Zusammengehörendes trennt.
Auf dem Bild rechts die gleiche Blickrichtung (vergleichen Sie die rot hervorgehobene Dachkante mit dem vorherigen Bild!)
Eine geschäftige Straße aus den späten 20ern. Wo man heute eher »nur schnell durch zur U-Bahn« oder »nach Hause« will, ging man früher »hin«. Hier hatte man etwas zu erledigen; hier hielt man sich auf.
Beeindruckend die Raumfluchten, die Torsituation mit dem Blick in die nördliche Blissestraße, die damals noch Augustastraße hieß. Vor dem Betrachter »die Stadt«, hinter ihm der Freiraum des Parks: Innen und Außen waren wohl definiert und vermittelten ein gutes Raumgefühl.
Nach rechts im Bild geht NICHT die Uhlandstraße ab – es handelt sich vielmehr um die schmale Hindenburgstraße, die von links nach rechts kreuzt (ihr linker Teil erschließt heute als kurzer Straßenstummel die Ebert-Schule).

Die »Blisse« damals, als sie noch »Augusta« hieß
(Wiedergabe mit freundl. Genehmigung des Museums Charlottenburg-Wilmersdorf)

Damals und Jetzt ineinandermontiert
(Montage M. Reich)
Im nebenstehenden Bild sind beide Zeitebenen ineinandermontiert Zwei rote Rechtecke helfen den Augen, sich festzuhalten: an der imposanten Dachkante Augusta / Blissestraße Ecke Wilhelmsaue. Links neben dem linken roten Rahmen sieht man drei helle Fenster übereinander (im neuen Foto sind sie dunkel) – unten in diesem Hause ist großes Kino: EVA-Lichstspiele!
Es wird deutlich: Um hier wieder »Stadträume« zu schaffen, muss die rechte Straßenseite neu entstehen. Ist da aber nicht die Uhlandstraße?
Nein, das ist die Hindenburgstraße!
Wenn das aber die Hindenburgstraße ist, wo ist dann die Uhlandstraße?
Nebenstehend ein Stadtplan aus den 20er Jahren.
Oben in der Mitte am Bildrand kommt die Uhlandstraße ang und geschäftig, vom Kudamm und – endet an der Wilhelmsaue still im Grünen. Der Volkspark heißt Hindenburgpark, begleitet auf beiden Seiten von der Hindenburgstraße.

Der Stadtplan von Ende der 20er Jahre lüftet das »Rätsel« um die Uhlandstraße

Hier endete einst die Uhlandstraße, am Kaiserdenkmal in der Wilhelmsaue (Wiedergabe mit freundlicher Genehmigung des Museums Charlottenburg-Wilmersdorf)
Was uns also heute wie selbstverständlich erscheint, nämlich die Verbindung von Mecklenburgischer Straße zur Uhlandstraße, war so in früherer Zeit nicht gegeben.
Erst Ende des 19. Jahrhunderts wurde die Uhlandstraße von Norden her Schritt für Schritt verlängert und endete schließlich am Kaiser-Wilhelm-Denkmal an der Wilhelmsaue.
Das Gebiet des alten Wilmersdorfer Kerns nördlich des Volksparks ist im Zweiten Weltkrieg stark beschädigt worden.
Auf der Planunterlage zur Skizze des Bebauungsplans links im Bild ist zu erkennen, dass es insbesondere auf der Ostseite der nördlichen Blissestraße – und dort vor allem zwischen Wilhelmsaue und Volkspark – zu erheblichen Schäden gekommen war.
Die günstigste Vorlage also für einen Straßendurchbruch, den es so nie gegeben hatte!
Auf der Planskizze aus dem Bebauungsplanverfahren für den Straßendurchbruch aus dem Jahr 1960 sind erste Neubauten an der Ecke Wilhelmsaue/Blissestraße (Marien-Apotheke) erkennbar, aber auch noch vorhandene Altbauten nördlich der Tankstelle und auf der Ostseite der Uhlandstraße nördlich der Wilhelmsaue (letztere wichen dem Straßenausbau).

Skizze zum Bebauungsplan von 1960
(Geodatenservice Bezirksamt Charlottenburg-Wilmersdorf)

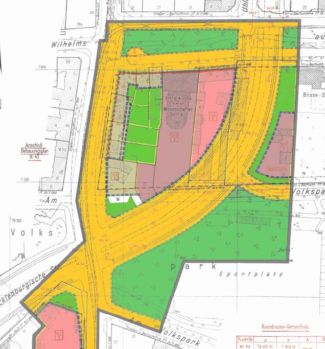
Ausschnitt aus dem Bebauungsplan IX-32
(Geodatenservice Bezirksamt Charlottenburg-Wilmersdorf)
Der zugehörige Bebauungsplan wurde dann innerhalb weniger Jahre realisiert.
Eröffnung des Straßendurchbruchs war 1964.

Luftaufnahme der fertiggestellten Kreuzung (links unten der Uhlandbogen, oben rechts die Mecklenburgische Straße)
Dieser Straßendurchbruch steht für das Denken und Planen im Sinne der »autogerechten Stadt« in der Nachkriegszeit. Im Ergebnis wird die »Wilmersdorfer Mitte« durch eine in dieser Dimension fragwürdige Kreuzung brutal zerschnitten, und damit der ihn prägende Volkspark und die Grünflächen des alten Wilmersdorfer Kerns rund um Auenkirche, Schoeler-Schlösschen und Wilhelmsaue.

Luftbild der »Wilmersdorfer Mitte« mit Planungsproblemen
Der Volkspark wird durch mehrere Verkehrsachsen in Nordsüdrichtung durchschnitten (1). Große Sportplätze und die Kreuzung (2) erschweren das Durchqueren des Volksparks. Der östliche Teil der Wilhelmsaue mit Auenkirche und Schoeler-Schlösschen sind durch die Uhlandstraße durchschnitten bzw. abgehängt (3).
Ausgehend von der Situation an der Kreuzung Blissestraße, Mecklenburgische und Uhlandstraße weitet sich also der Blick auf den Großraum Wilhelmsaue / Volkspark aus. Unter dem Planungsbereich »Wilmersdorfer Mitte« sei somit der Bereich genannt, der begrenzt wird von Berliner Straße im Norden, Am Schoelerpark im Süden, Blissestraße im Westen und Schoelerpark im Osten. Änderungen im Bereich der Kreuzung bzw. im Verlauf der Uhlandstraße haben umfangreiche Auswirkungen auf das gesamte Planungsbebiet »Wilmersdorfer Mitte«.
Kann ein Neubedenken der stadträumlichen Situation an dieser Kreuzung der Schlüssel sein für ein Wiederzurückgewinnen von mehr Aufenthaltsqualität, Grün, Kultur und Wohnen im gesamten Kiez? Liegt hier der Schlüssel für die Rückgewinnung eines verloren Stadtraumes? Für einen Stadtraum, den heute jeder und jede nur schnell durcheilt? Wo niemand wirklich verweilen mag?
Berlin ist voll von Relikten der »autogerechten Stadtplanung« der 60er und 70er Jahre: Überdimensioniert breite Straßen, vorbehaltene Freiflächen, monströse Brückenbauwerke. Hier soll nicht über dieses Denken gerichtet werden. Die Zeit aber ist dabei, darüber hinwegzugehen: Ein neuer Mobilitätsmix aus ÖPNV, PKW, Fahrrad, Fußgänger, neues Nutzerverhalten und geänderte Fahranreize führen die Fragwürdigkeit vieler dieser Planungen allen vor Augen.
Es ist an der Zeit, diese Planungen unter veränderten Verhältnissen neu zu betrachten.
Es besteht die Chance, durch vorsichtigen Um- oder Rückbau Stadtraum zurück- oder wiederzugewinnen: Die »Wilmersdorfer Mitte« neu erstehen zu lassen.

In der obigen Planskizze ist die Uhlandstraße wieder Richtung Charlottenburg »zurückgewichen« und endet bereits an der Berliner Straße.
Ihr ehemaliger Schussteil bis zum Kaiserdenkmal wird zum »Zentralen Ort« (hellorangefarben); hier trifft man sich, hier ist Markt, hier spicht der Bürgermeister oder die Bürgermeisterin anlässlich wichtiger Ereignisse.
Das Wohngebiet Wilhelmsaue (orangefarben) ist vom Durchgangsverkehr befreit und als Mischzone konzipert, in der alle Verkehrsteilnehmer aufeinander Rücksicht nehmen. Das Gebiet ist beruhigt; die Wege, insbesondere für die Jüngsten und die Älteren, werden kürzer und sicherer; die Wohn- und Aufenthaltsqualität steigt durch eine bessere Außenraumgestaltung. Alle Gebäude bleiben gut erreichbar.
Die Stadtkanten entstehen neu – insbesondere durch eine Blockrandergänzung am Nordrand des Volksparks. Platz entsteht für dringend benötigten Wohnraum.
Platz aber auch für neue Grün- und Freiflächen oder Verbindungen zwischen Wilhelmsaue und Volkspark. Überhaupt gilt nun endlich wieder: »Vorfahrt für den Volkspark« Der Park wächst auf sich zu.
An der Querung mit der Blissestraße werden neue Formen des Miteinanders der Verkehrsteilnehmer probiert. Hier achtet jeder auf jeden. Die Blissestraße und die Berliner bleiben Hauptverkehrsstraßen Durch verbesserte Außenraumgestaltungen und dadurch, dass der Kiez insgesamt »gewinnt«, wird auch dieses Einzelhandelszentrum gestärkt.
Auf dieser Seite erklären wir, wie sich aus einer Untersuchung der unbefriedigenden aktuellen Situation Leitideen für eine Neukonzeption des Gebietes entwickeln.
Kann das sein?
Man baut eine Kreuzung um.
Und gewinnt einen Stadtraum zurück?
Und wiedervereint einen zerrissenen Park?
Und ein Stadtteil erhält seine Mitte zurück?
Nur ein Planermärchen? Im Gegenteil!

Die Kreuzung Uhland / Blisse / Mecklenburgische
(Fotos M. Reich)


Am Anfang der Idee stand die desolate Situation an der Kreuzung Uhland-/Blisse-/Mecklenburgische Straße Ein zerklüfteter Stadtraum, ohne Form und ohne Raumkanten.
Eine Kreuzung, die für Fußgänger und Jogger ein Alptraum ist.
Weniger wegen des Verkehrsaufkommens, sondern einfach deswegen, weil sie eine Blockade darstellt und Zusammengehörendes trennt.
Todesmutig »werfen« sich Jogger ins Getümmel
(Fotos M. Reich)
Auf dem Bild rechts die gleiche Blickrichtung (vergleichen Sie die rot hervorgehobene Dachkante mit dem vorherigen Bild!)
Eine geschäftige Straße aus den späten 20ern. Wo man heute eher »nur schnell durch zur U-Bahn« oder »nach Hause« will, ging man früher »hin«. Hier hatte man etwas zu erledigen; hier hielt man sich auf.
Beeindruckend die Raumfluchten, die Torsituation mit dem Blick in die nördliche Blissestraße, die damals noch Augustastraße hieß. Vor dem Betrachter »die Stadt«, hinter ihm der Freiraum des Parks: Innen und Außen waren wohl definiert und vermittelten ein gutes Raumgefühl.

Die »Blisse« damals, als sie noch »Augusta« hieß
(Wiedergabe mit freundl. Genehmigung des Museums Charlottenburg-Wilmersdorf)
Nach rechts im Bild geht NICHT die Uhlandstraße ab – es handelt sich vielmehr um die schmale Hindenburgstraße, die von links nach rechts kreuzt (ihr linker Teil erschließt heute als kurzer Straßenstummel die Ebert-Schule).

Damals und Jetzt ineinandermontiert
(Montage M. Reich)
Im nebenstehenden Bild sind beide Zeitebenen ineinandermontiert Zwei rote Rechtecke helfen den Augen, sich festzuhalten: an der imposanten Dachkante Augusta / Blissestraße Ecke Wilhelmsaue. Links neben dem linken roten Rahmen sieht man drei helle Fenster übereinander (im neuen Foto sind sie dunkel) – unten in diesem Hause ist großes Kino: EVA-Lichstspiele!
Es wird deutlich: Um hier wieder »Stadträume« zu schaffen, muss die rechte Straßenseite neu entstehen. Ist da aber nicht die Uhlandstraße?
Nein, das ist die Hindenburgstraße!
Wenn das aber die Hindenburgstraße ist, wo ist dann die Uhlandstraße?
Nebenstehend ein Stadtplan aus den 20er Jahren.
Oben in der Mitte am Bildrand kommt die Uhlandstraße ang und geschäftig, vom Kudamm und – endet an der Wilhelmsaue still im Grünen. Der Volkspark heißt Hindenburgpark, begleitet auf beiden Seiten von der Hindenburgstraße.

Der Stadtplan von Ende der 20er Jahre lüftet das »Rätsel« um die Uhlandstraße

Hier endete einst die Uhlandstraße, am Kaiserdenkmal in der Wilhelmsaue (Wiedergabe mit freundlicher Genehmigung des Museums Charlottenburg-Wilmersdorf)
Was uns also heute wie selbstverständlich erscheint, nämlich die Verbindung von Mecklenburgischer Straße zur Uhlandstraße, war so in früherer Zeit nicht gegeben.
Erst Ende des 19. Jahrhunderts wurde die Uhlandstraße von Norden her Schritt für Schritt verlängert und endete schließlich am Kaiser-Wilhelm-Denkmal an der Wilhelmsaue.
Das Gebiet des alten Wilmersdorfer Kerns nördlich des Volksparks ist im Zweiten Weltkrieg stark beschädigt worden.
Auf der Planunterlage zur Skizze des Bebauungsplans links im Bild ist zu erkennen, dass es insbesondere auf der Ostseite der nördlichen Blissestraße – und dort vor allem zwischen Wilhelmsaue und Volkspark – zu erheblichen Schäden gekommen war.
Die günstigste Vorlage also für einen Straßendurchbruch, den es so nie gegeben hatte!

Skizze zum Bebauungsplan von 1960
(Geodatenservice Bezirksamt Charlottenburg-Wilmersdorf)
Auf der Planskizze aus dem Bebauungsplanverfahren für den Straßendurchbruch aus dem Jahr 1960 sind erste Neubauten an der Ecke Wilhelmsaue/Blissestraße (Marien-Apotheke) erkennbar, aber auch noch vorhandene Altbauten nördlich der Tankstelle und auf der Ostseite der Uhlandstraße nördlich der Wilhelmsaue (letztere wichen dem Straßenausbau).

Ausschnitt aus dem Bebauungsplan IX-32
(Geodatenservice Bezirksamt Charlottenburg-Wilmersdorf)
Der zugehörige Bebauungsplan wurde dann innerhalb weniger Jahre realisiert.
Eröffnung des Straßendurchbruchs war 1964.

Luftaufnahme der fertiggestellten Kreuzung (links unten der Uhlandbogen, oben rechts die Mecklenburgische Straße)
Dieser Straßendurchbruch steht für das Denken und Planen im Sinne der »autogerechten Stadt« in der Nachkriegszeit. Im Ergebnis wird die »Wilmersdorfer Mitte« durch eine in dieser Dimension fragwürdige Kreuzung brutal zerschnitten, und damit der ihn prägende Volkspark und die Grünflächen des alten Wilmersdorfer Kerns rund um Auenkirche, Schoeler-Schlösschen und Wilhelmsaue.

Luftbild der »Wilmersdorfer Mitte« mit Planungsproblemen
Der Volkspark wird durch mehrere Verkehrsachsen in Nordsüdrichtung durchschnitten (1). Große Sportplätze und die Kreuzung (2) erschweren das Durchqueren des Volksparks. Der östliche Teil der Wilhelmsaue mit Auenkirche und Schoeler-Schlösschen sind durch die Uhlandstraße durchschnitten bzw. abgehängt (3).
Ausgehend von der Situation an der Kreuzung Blissestraße, Mecklenburgische und Uhlandstraße weitet sich also der Blick auf den Großraum Wilhelmsaue / Volkspark aus. Unter dem Planungsbereich »Wilmersdorfer Mitte« sei somit der Bereich genannt, der begrenzt wird von Berliner Straße im Norden, Am Schoelerpark im Süden, Blissestraße im Westen und Schoelerpark im Osten. Änderungen im Bereich der Kreuzung bzw. im Verlauf der Uhlandstraße haben umfangreiche Auswirkungen auf das gesamte Planungsbebiet »Wilmersdorfer Mitte«.
Kann ein Neubedenken der stadträumlichen Situation an dieser Kreuzung der Schlüssel sein für ein Wiederzurückgewinnen von mehr Aufenthaltsqualität, Grün, Kultur und Wohnen im gesamten Kiez? Liegt hier der Schlüssel für die Rückgewinnung eines verloren Stadtraumes? Für einen Stadtraum, den heute jeder und jede nur schnell durcheilt? Wo niemand wirklich verweilen mag?
Berlin ist voll von Relikten der »autogerechten Stadtplanung« der 60er und 70er Jahre: Überdimensioniert breite Straßen, vorbehaltene Freiflächen, monströse Brückenbauwerke. Hier soll nicht über dieses Denken gerichtet werden. Die Zeit aber ist dabei, darüber hinwegzugehen: Ein neuer Mobilitätsmix aus ÖPNV, PKW, Fahrrad, Fußgänger, neues Nutzerverhalten und geänderte Fahranreize führen die Fragwürdigkeit vieler dieser Planungen allen vor Augen.

Es ist an der Zeit, diese Planungen unter veränderten Verhältnissen neu zu betrachten.
Es besteht die Chance, durch vorsichtigen Um- oder Rückbau Stadtraum zurück- oder wiederzugewinnen: Die »Wilmersdorfer Mitte« neu erstehen zu lassen.
In der obigen Planskizze ist die Uhlandstraße wieder Richtung Charlottenburg »zurückgewichen« und endet bereits an der Berliner Straße.
Ihr ehemaliger Schussteil bis zum Kaiserdenkmal wird zum »Zentralen Ort« (hellorangefarben); hier trifft man sich, hier ist Markt, hier spicht der Bürgermeister oder die Bürgermeisterin anlässlich wichtiger Ereignisse.
Das Wohngebiet Wilhelmsaue (orangefarben) ist vom Durchgangsverkehr befreit und als Mischzone konzipert, in der alle Verkehrsteilnehmer aufeinander Rücksicht nehmen. Das Gebiet ist beruhigt; die Wege, insbesondere für die Jüngsten und die Älteren, werden kürzer und sicherer; die Wohn- und Aufenthaltsqualität steigt durch eine bessere Außenraumgestaltung. Alle Gebäude bleiben gut erreichbar.
Die Stadtkanten entstehen neu – insbesondere durch eine Blockrandergänzung am Nordrand des Volksparks. Platz entsteht für dringend benötigten Wohnraum.
Platz aber auch für neue Grün- und Freiflächen oder Verbindungen zwischen Wilhelmsaue und Volkspark. Überhaupt gilt nun endlich wieder: »Vorfahrt für den Volkspark« Der Park wächst auf sich zu.
An der Querung mit der Blissestraße werden neue Formen des Miteinanders der Verkehrsteilnehmer probiert. Hier achtet jeder auf jeden. Die Blissestraße und die Berliner bleiben Hauptverkehrsstraßen Durch verbesserte Außenraumgestaltungen und dadurch, dass der Kiez insgesamt »gewinnt«, wird auch dieses Einzelhandelszentrum gestärkt.
Auf dieser Seite erklären wir, wie wir Leitideen für eine Neukonzeption des Gebietes entwickelt haben, indem wir die unbefriedigende aktuelle Situation genauer untersuchten.
Kann das sein?
Man baut eine Kreuzung um.
Und gewinnt einen Stadtraum zurück?
Und wiedervereint einen zerrissenen Park?
Und ein Stadtteil erhält seine Mitte zurück?
Nur ein Planermärchen? Im Gegenteil!

Die Kreuzung Uhland / Blisse / Mecklenburgische
(Fotos M. Reich)
Am Anfang der Idee stand die desolate Situation an der Kreuzung Uhland-/Blisse-/Mecklenburgische Straße Ein zerklüfteter Stadtraum, ohne Form und ohne Raumkanten.


Todesmutig »werfen« sich Jogger ins Getümmel
(Fotos M. Reich)
Eine Kreuzung, die für Fußgänger und Jogger ein Alptraum ist.
Weniger wegen des Verkehrsaufkommens, sondern einfach deswegen, weil sie eine Blockade darstellt und Zusammengehörendes trennt.
Auf dem Bild unten die gleiche Blickrichtung (vergleichen Sie die rot hervorgehobene Dachkante mit dem vorherigen Bild!)

Die »Blisse« damals, als sie noch »Augusta« hieß
(Wiedergabe mit freundl. Genehmigung des Museums Charlottenburg-Wilmersdorf)
Eine geschäftige Straße aus den späten 20ern. Wo man heute eher »nur schnell durch zur U-Bahn« oder »nach Hause« will, ging man früher »hin«. Hier hatte man etwas zu erledigen; hier hielt man sich auf.
Beeindruckend die Raumfluchten, die Torsituation mit dem Blick in die nördliche Blissestraße, die damals noch Augustastraße hieß. Vor dem Betrachter »die Stadt«, hinter ihm der Freiraum des Parks: Innen und Außen waren wohl definiert und vermittelten ein gutes Raumgefühl.
Nach rechts im Bild geht NICHT die Uhlandstraße ab – es handelt sich vielmehr um die schmale Hindenburgstraße, die von links nach rechts kreuzt (ihr linker Teil erschließt heute als kurzer Straßenstummel die Ebert-Schule).
Im untenstehenden Bild sind beide Zeitebenen ineinandermontiert Zwei rote Rechtecke helfen den Augen, sich festzuhalten: an der imposanten Dachkante Augusta / Blissestraße Ecke Wilhelmsaue. Links neben dem linken roten Rahmen sieht man drei helle Fenster übereinander (im neuen Foto sind sie dunkel) – unten in diesem Hause ist großes Kino: EVA-Lichstspiele!

Damals und Jetzt ineinandermontiert
(Montage M. Reich)
Es wird deutlich: Um hier wieder »Stadträume« zu schaffen, muss die rechte Straßenseite neu entstehen. Ist da aber nicht die Uhlandstraße?
Nein, das ist die Hindenburgstraße!
Wenn das aber die Hindenburgstraße ist, wo ist dann die Uhlandstraße?
Im Folgenden ein Stadtplan aus den 20er Jahren.

Der Stadtplan von Ende der 20er Jahre lüftet das »Rätsel« um die Uhlandstraße
Oben in der Mitte am Bildrand kommt die Uhlandstraße ang und geschäftig, vom Kudamm und – endet an der Wilhelmsaue still im Grünen. Der Volkspark heißt Hindenburgpark, begleitet auf beiden Seiten von der Hindenburgstraße.
Was uns also heute wie selbstverständlich erscheint, nämlich die Verbindung von Mecklenburgischer Straße zur Uhlandstraße, war so in früherer Zeit nicht gegeben.

Hier endete einst die Uhlandstraße, am Kaiserdenkmal in der Wilhelmsaue (Wiedergabe mit freundlicher Genehmigung des Museums Charlottenburg-Wilmersdorf)
Erst Ende des 19. Jahrhunderts wurde die Uhlandstraße von Norden her Schritt für Schritt verlängert und endete schließlich am Kaiser-Wilhelm-Denkmal an der Wilhelmsaue.
Das Gebiet des alten Wilmersdorfer Kerns nördlich des Volksparks ist im Zweiten Weltkrieg stark beschädigt worden.
Auf der Planunterlage zur Skizze des Bebauungsplans unten im Bild ist zu erkennen, dass es insbesondere auf der Ostseite der nördlichen Blissestraße – und dort vor allem zwischen Wilhelmsaue und Volkspark – zu erheblichen Schäden gekommen war.

Skizze zum Bebauungsplan von 1960
(Geodatenservice Bezirksamt Charlottenburg-Wilmersdorf)
Die günstigste Vorlage also für einen Straßendurchbruch, den es so nie gegeben hatte!
Auf der Planskizze aus dem Bebauungsplanverfahren für den Straßendurchbruch aus dem Jahr 1960 sind erste Neubauten an der Ecke Wilhelmsaue/Blissestraße (Marien-Apotheke) erkennbar, aber auch noch vorhandene Altbauten nördlich der Tankstelle und auf der Ostseite der Uhlandstraße nördlich der Wilhelmsaue (letztere wichen dem Straßenausbau).
Der zugehörige Bebauungsplan wurde dann innerhalb weniger Jahre realisiert.

Ausschnitt aus dem Bebauungsplan IX-32
(Geodatenservice Bezirksamt Charlottenburg-Wilmersdorf)
Eröffnung des Straßendurchbruchs war 1964.

Luftaufnahme der fertiggestellten Kreuzung (links unten der Uhlandbogen, oben rechts die Mecklenburgische Straße)
Dieser Straßendurchbruch steht für das Denken und Planen im Sinne der »autogerechten Stadt« in der Nachkriegszeit. Im Ergebnis wird die »Wilmersdorfer Mitte« durch eine in dieser Dimension fragwürdige Kreuzung brutal zerschnitten, und damit der ihn prägende Volkspark und die Grünflächen des alten Wilmersdorfer Kerns rund um Auenkirche, Schoeler-Schlösschen und Wilhelmsaue.

Luftbild der »Wilmersdorfer Mitte« mit Planungsproblemen
Der Volkspark wird durch mehrere Verkehrsachsen in Nordsüdrichtung durchschnitten (1). Große Sportplätze und die Kreuzung (2) erschweren das Durchqueren des Volksparks. Der östliche Teil der Wilhelmsaue mit Auenkirche und Schoeler-Schlösschen sind durch die Uhlandstraße durchschnitten bzw. abgehängt (3).
Ausgehend von der Situation an der Kreuzung Blissestraße, Mecklenburgische und Uhlandstraße weitet sich also der Blick auf den Großraum Wilhelmsaue / Volkspark aus. Unter dem Planungsbereich »Wilmersdorfer Mitte« sei somit der Bereich genannt, der begrenzt wird von Berliner Straße im Norden, Am Schoelerpark im Süden, Blissestraße im Westen und Schoelerpark im Osten. Änderungen im Bereich der Kreuzung bzw. im Verlauf der Uhlandstraße haben umfangreiche Auswirkungen auf das gesamte Planungsbebiet »Wilmersdorfer Mitte«.
Kann ein Neubedenken der stadträumlichen Situation an dieser Kreuzung der Schlüssel sein für ein Wiederzurückgewinnen von mehr Aufenthaltsqualität, Grün, Kultur und Wohnen im gesamten Kiez? Liegt hier der Schlüssel für die Rückgewinnung eines verloren Stadtraumes? Für einen Stadtraum, den heute jeder und jede nur schnell durcheilt? Wo niemand wirklich verweilen mag?
Berlin ist voll von Relikten der »autogerechten Stadtplanung« der 60er und 70er Jahre: Überdimensioniert breite Straßen, vorbehaltene Freiflächen, monströse Brückenbauwerke. Hier soll nicht über dieses Denken gerichtet werden. Die Zeit aber ist dabei, darüber hinwegzugehen: Ein neuer Mobilitätsmix aus ÖPNV, PKW, Fahrrad, Fußgänger, neues Nutzerverhalten und geänderte Fahranreize führen die Fragwürdigkeit vieler dieser Planungen allen vor Augen.
Es ist an der Zeit, diese Planungen unter veränderten Verhältnissen neu zu betrachten.
Es besteht die Chance, durch vorsichtigen Um- oder Rückbau Stadtraum zurück- oder wiederzugewinnen: Die »Wilmersdorfer Mitte« neu erstehen zu lassen.

In der obigen Planskizze ist die Uhlandstraße wieder Richtung Charlottenburg »zurückgewichen« und endet bereits an der Berliner Straße.
Ihr ehemaliger Schussteil bis zum Kaiserdenkmal wird zum »Zentralen Ort« (hellorangefarben); hier trifft man sich, hier ist Markt, hier spicht der Bürgermeister oder die Bürgermeisterin anlässlich wichtiger Ereignisse.
Das Wohngebiet Wilhelmsaue (orangefarben) ist vom Durchgangsverkehr befreit und als Mischzone konzipert, in der alle Verkehrsteilnehmer aufeinander Rücksicht nehmen. Das Gebiet ist beruhigt; die Wege, insbesondere für die Jüngsten und die Älteren, werden kürzer und sicherer; die Wohn- und Aufenthaltsqualität steigt durch eine bessere Außenraumgestaltung. Alle Gebäude bleiben gut erreichbar.
Die Stadtkanten entstehen neu – insbesondere durch eine Blockrandergänzung am Nordrand des Volksparks. Platz entsteht für dringend benötigten Wohnraum.
Platz aber auch für neue Grün- und Freiflächen oder Verbindungen zwischen Wilhelmsaue und Volkspark. Überhaupt gilt nun endlich wieder: »Vorfahrt für den Volkspark« Der Park wächst auf sich zu.
An der Querung mit der Blissestraße werden neue Formen des Miteinanders der Verkehrsteilnehmer probiert. Hier achtet jeder auf jeden. Die Blissestraße und die Berliner bleiben Hauptverkehrsstraßen Durch verbesserte Außenraumgestaltungen und dadurch, dass der Kiez insgesamt »gewinnt«, wird auch dieses Einzelhandelszentrum gestärkt.